沖縄で二世帯住宅が注目されている理由とは
沖縄には特有の大家族文化・親子同居の考え方があります。兄弟が多い家庭や仏壇を持つ長男は親と同居しているなど、昔ながらの家の在り方がありました。
しかし、昭和平成と核家族が増えていき、家の大きさや間取りも核家族に合わせたものが多くなってきました。

沖縄の現在は土地の価格高騰や家族の繋がりが考え直され、二世帯住宅を新築する人が増えてきたように感じます。当社でも二世帯住宅の建築数は増えています。
ここでは、沖縄で木造二世帯住宅の新築を検討している方へ、知っておくべき、メリットデメリットや間取り、費用について説明します。
二世帯住宅とは?基本の考え方とタイプの違い

二世帯住宅には完全同居型・部分共有型・完全分離型の3タイプがあります。
完全同居型
個室以外のすべてを共有するのが完全同居型です。
コンパクトで効率的な間取りを実現でき、建築コストや光熱費などが経済的に一番良いものです。
二世帯・三世代がひとつ家で、食事や団らんをして楽しく過ごし、お互いを配慮し助け合いながら、安心して暮らすことができます。
デメリットとしては、プライベートな空間が少ないところです。
部分共有型
一部共有型は玄関やお風呂といった家の一部分を共有しているスタイルです。主な生活空間を分け、キッチンや玄関などを共有するため家全体のランニングコストを下げられます。共有する部分については、家族で相談して、新築することが可能です。
デメリットは、世帯ごとの生活スタイルの違いによるストレスを受ける場合があります。特に騒音などがストレスになりやすく、深夜のドアの開閉音や掃除機、テレビなどの音について、お互いの配慮が必要になります。当社では世帯ごとの生活音を防ぐために、遮音・吸音などの工夫や間取りでの工夫を行っています。
完全分離型
完全分離型は、親世帯と子世帯が一つの建物で暮らしていながらも、それぞれの住空間が完全に分かれている住宅です。居室やリビング、キッチン、浴室、トイレ、玄関など、住宅の主要な設備をそれぞれの世帯専用に設けられ、それぞれが独立して生活できる環境になっています。
特に沖縄の二世帯住宅で一番人気のスタイルです。
デメリットは完全同居型や部分共有型の二世帯住宅に比べて、土地代や建築費用が高くなる傾向にあります。二世帯分の人数が一つの建物で暮らすためには、広めの土地が必要になり、キッチンや浴室などの設備に関しても二世帯分が必要になるため、その分コストがかかります。

##沖縄における二世帯住宅を建てるメリットとは
沖縄で二世帯住宅を建てる一番大きなメリットは経済面(光熱費・家賃)です。例として建設費では2軒分建てるのに必要な費用に対して約400万円の削減ができるイメージです。
最近では、ZEH二世帯住宅とすれば、昼間居る時間の長い親世帯を含めた1棟の光熱費は2軒分より大幅に削減できます。
また、当社の建築実績で基礎と屋根を共有するのでUA値が約30%に向上することが分かっています。
省エネ性が高いZEH二世帯住宅はこれからの住まいの優良モデルになるでしょう。

育児・介護のコスト削減
お子さんが小さい時には、何かと手がかかることが多くあります。そんな時、二世帯住宅では親世帯が近くにいることで子育ての協力が得られます。また、万が一の時でも頼れる存在が近くにいるだけで、大きな安心感があります。
親の介護の必要がある場合でも二世帯住宅は介護しやすい環境となります。これら育児や介護などにかかるコストや時間を削減できるのが大きなメリットです。

###相続等税金対策として有効
二世帯住宅を新築する際に、親の持っている土地を生前贈与で受け取ることで、相続税の節税に有効になります。また、小規模宅地等の特例を受けることで、相続された土地の評価額を最大80%減額できます。ただし、親子の共有名義にするなどの条件があるため、事前に税理士さんへ相談することをおすすめします。
また、不動産取得税は各世帯が独立した構造だと二戸分の軽減措置を受けられる場合があります。固定資産税は土地と家屋の両方に減免措置があります。さらに、長期優良住宅に認定された住宅ならば、新築後5年間は2分の1に減額されます。

###台風・災害時の安心の拠点としての強み
沖縄で新築するなら、台風や災害に強い耐震等級3クラスの家を建てることをおすすめします。さらに親子世帯が一緒なら安心です。ZEH二世帯住宅であれば、停電があっても、昼間は太陽光の自立運転、夜間は蓄電池で一週間はオフグリッドな生活が可能となり、災害時でも安心して過ごすことができます。
また、日中の在宅が多い親世帯が太陽光を利用することで、世帯全体の光熱費が大幅に削減できることも大きなメリットです。

沖縄で二世帯住宅を建てる際の注意点とポイント
プライバシーと距離感のバランス設計
親子仲が良い世帯でもプライバシーは重要です。
家族みんながちょうどいい距離感と空間をどう設計するかがポイントになります。
まずは、各世帯の生活スタイルを振り返ってみましょう。ファミリーとシニアでは、時間や暮らし方が大きくかわります。
今まで暮らしていた住環境と大きく変わると、ストレスに感じることもあります。お互いの生活習慣を尊重しながら、家族間で共有したいことと、プライバシーを守りたいところを明確にして、二世帯で合意できるコンセプトを建てると良いでしょう。
二世帯で問題になりやすいのは騒音です。静かに暮らしたい親世帯と、子育て中のファミリーでは音の感覚が大きく異なります。プランニングの際には、親世帯の寝室の上に2階のリビングやお風呂やトイレは避けると良いでしょう。また、床を2重にしたり、遮音床システムを導入する方法も有効です。

二世帯住宅の顔となる外観は、各世帯のセンスや好みを反映しつつ、シンプルで飽きのこないデザインでまとめると良いでしょう。また、地域に対して印象良く、良好な街並みになるような外観にすることをおすすめします。
共有のアプローチ、庭、菜園等の外構は家族を繋ぐ大切な要素です。それぞれの好みを取り入れつつ、一緒に庭づくりができるように計画しましょう。

###二世帯住宅はロングスパンで考える
二世帯住宅は親世帯の健康状態の変化を許容できるように、バリアフリー仕様で設計するのがセオリーです。将来介護が必要になった時に、とても介助がしやすいです。
親世帯が去ったあとは、その後賃貸として一時貸し出すこともあるかも知れませんし、
何十年先は代替わりして、子世帯が親世帯として1階に下りてくることでしょう。
その時でも大規模なリフォームをしなくても良いように、3世代、100年先を考えて家づくりをしましょう。
ハルモデザインでは100年先を考えた高耐久で省エネな高性能住宅であることはもちろん、家族の繋がりとプライバシーの双方を満たすベストバランスハウスをご提案しております。親子世帯が大切にしたい暮らしをヒアリングし設計に反映させます。それぞれのライフスタイルをデザインすることが理想の二世帯住宅を創ることに繋がります。
二世帯住宅の間取りアイデア集
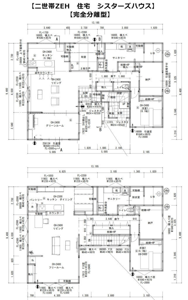
完全分離型で玄関・水回りを分ける設計事例

当社ハルモデザインの二世帯住宅の建築実績をご紹介します。
シスターズハウス 1階 二世帯ZEH
シスターズハウス 2階 二世帯ZEH
シンプル二世帯ZEH
Family tree house
これまでも二世帯住宅の新築では、家族間の意見やご要望を引出し、皆様の理想を叶えるご提案を行っております。これからも住み良い二世帯住宅の新築を設計力で、サポートしていきます。
実例紹介:沖縄県浦添市で二世帯住宅を建てた施主の声
2018年浦添市で木造二世帯住宅を新築。二階子世帯、一階親世帯の完全分離型。
Family tree house
住んでみてわかったメリット
二世帯住宅の大きなメリットは建築費を抑えられたこと。完全分離型にしたことで、お互いのプライバシーが保たれ、気兼ねなく生活が出来ています。
子ども達が幼い時は面倒を見てもらえることや不在時の配達物の預かりなど、とても助かっています。
親世帯・子世帯それぞれの満足ポイントとして、ハルモデザインさんの細やかなヒアリングで、それぞれの要望に合わせた間取りや設備を提案いただき、、お互いに満足度の凄く高い家が建てられました。
沖縄で家族みんなが快適に暮らせる二世帯住宅を実現しよう
二世帯住宅は、将来を見据えた家族の暮らし方の選択肢の一つです。お互いの希望や理想にあった間取りで、共有できる部分を組み合わせることで、建築費をお得にすることができます。
初めての家づくりでわからないことはあると思いますが、ひとつひとつ丁寧にご説明いたします。初回相談は無料ですので、お気軽にご相談下さい。
一級建築士/一級施工管理技士 代表 岸田 匡史(きしだ まさふみ)
TEL:098-996-4810 (営業時間:08:30~18:00)
901-0241 沖縄県豊見城市豊見城574-20 がじゅまるビルヂング102
建築士事務所登録番号 沖縄県知事登録 第192-3533号
一般建設業許可番号 沖縄県知事 許可(般-5)第14926号












